Loading...

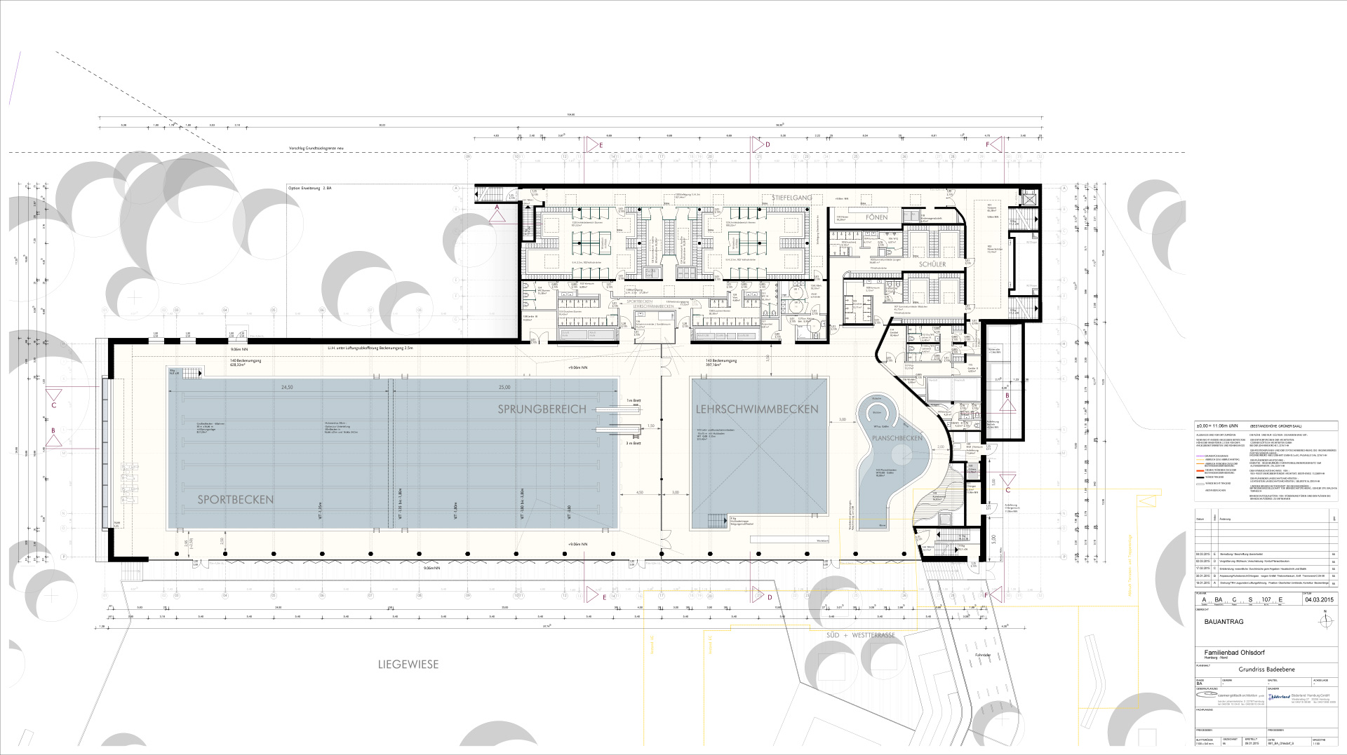
Sporthallenbad Ohlsdorf

Neubau | Schwimmbad | Massivbau Holzbau
Projektbeschreibung

Bauweise und Besonderheiten:
Dachtragwerk mit BSH-Bindern (h = 1,85 m, Spannweite 23,50 m), Dachscheibe aus Brettsperrholz, Becken und Kellerkasten in WU-Beton, Flachgründung (Baugrundverbesserung mit Rüttelstopfsäulen)

Das auf dem Grundstück vorhandene und auf Rammpfählen gegründete Hallenbad (errichtet ca. 1960) wurde vollständig abgebrochen. Aufgrund der direkten Nähe zum Neubau und des schlechten Bauzustandes des Altbaus mussten diverse Schnittstellen, wie z. B. vorgezogene Teilabbrüche, Hilfsabstützungen und Baugrubensicherungen bearbeitet und von unseren Ingenieuren örtlich betreut werden.

Das außerdem auf dem Grundstück vorhandene historische Eingangsgebäude wurde tlw. entkernt, umgebaut und saniert. Zukünftig dient es als Eingangsgebäude für den Neubau, außerdem ist hier die Verwaltung untergebracht.

Details

Nutzung:

Schwimmbad

Bauart:

Massivbau

Holzbau

Projekt:

Neubau

Größe:
ca. 7.600 m² BGF

Leistungen

Tragwerksplanung

Tragswerksentwurf Baugrubensicherung

Schal- und Bewehrungsplanung

Brandschutzplanung der Bauteile

Planung der thermischen Bauphysik

Planung der Bauakustik

Weitere Infos

Bauherr:
Bäderland Hamburg GmbH

Architekt:
Czerner Göttsch Architekten

Fertigstellung:
2020

Sie haben Fragen oder benötigen weitere Informationen?

Schreiben Sie uns eine E-Mail an statik@abel-ing.de

powered by webEdition CMS